建筑
规划
环境
内饰
東莞東聚科技有限公司
    發布時間: 2023-12-11 08:09    

Dongguan Primax Tech. Co.,Ltd.

東莞東聚科技有限公司

服務內容

建築設計及工程管理、室內設計及工程施工


年份

1996


建設總建築面積

186,346 ㎡


項目簡介

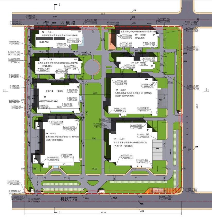
台資東聚科技有限公司於1996年於中國東莞投資建廠,從第一期至2020年建成第十期,所有工程均為我們設計及工程管理,其中室內裝修工程由本公司承包。歷時20年,我們深得客戶的信任及認可。


Service content

Architectural design and project management/ Interior design and construction.


Year

1996


Total Construction Area

186,346 ㎡


Project introduction

Taiwan-funded company Primax Tech. Co., Ltd.  invested and built a factory in Dongguan, China in 1996. From the first phase to the tenth phase in 2020, all projects are designed and managed by us, and the interior decoration project is contracted by our company. Over the past 20 years, we have won the trust and recognition of our customers.


版權所有:廣東天惟建築設計顧問有限公司

珠海:珠海市香洲區翠前北路三街

          118號森宇國際大廈1102-1

電話:(+86756) 8970259

郵箱:zhd@planwish.com.cn


東莞:東莞市南城區水濂山路凱

         達科技設計中心2號樓208

電話:(+86769) 23183058

傳真:(+86769) 23183056

郵箱:adm@planwish.com.cn

澳門:澳門宋玉生廣場335-341號

          獲多利中心4樓M

電話:(+853) 28509075

傳真:(+853)28509074

郵箱:adm@planwish.com